Uz stāva plānu

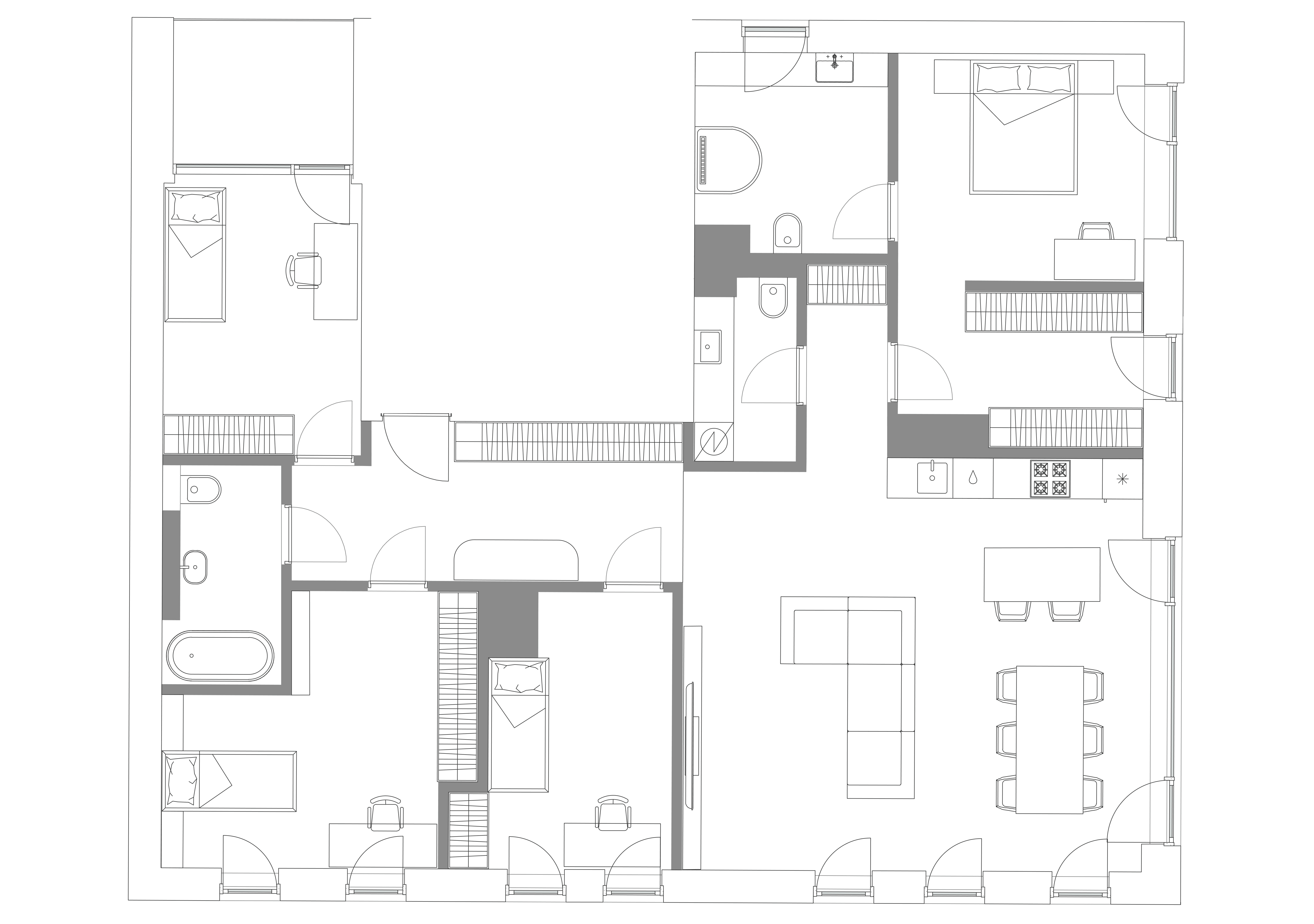
Dzīvoklis #13

Stāvs 6

Istabas 5

Kopējā platība 181 m²

Ārtelpas platība 33 m²

Cena 779.000 €

Tehniskā specifikācija

Skolas 17 priekšrocības

Virszemes un pazemes autostāvvieta ar autoliftu

Elektroauto uzlādes iespējas, velonovietnes

Iegādei pieejamas ērtas noliktavas telpas

Slēgta, droša un labiekārtota teritorija

Mūsdienīgas drošības sistēmas ar videonovērošanu

Energoefektīvi un ilgstpējīgi risinājumi

Premium apdare un pārdomāts arhitektūras dizains

Izdevīga atrašanās vieta pašā Rīgas centrā

Līdzsvars starp vēsturi un mūsdienīgu pilsētvidi

Skaista koplietošanas terase ēkas 3. stāvā

Līdzīgi dzīvokļi

Filtrēt pēc parametriem

Statuss

Statuss

Rezervēts

Pārdots

Statuss

#

Stāvs

Istabas

Cena, €

Kopējā m²

Ārtelpas m²

Statuss

38

6

4

-

136

32

Pārdots

39

6

4

-

108

-

Rezervēts

Tehniskā specifikācija

Izvēlies savu Skolas 17 dzīvokli

Apskati stāvu plānojumu un izvēlies piemērotāko dzīvokli. Piesakies konsultācijai un uzzini vairāk par projektu.

Izvēlēties dzīvokli