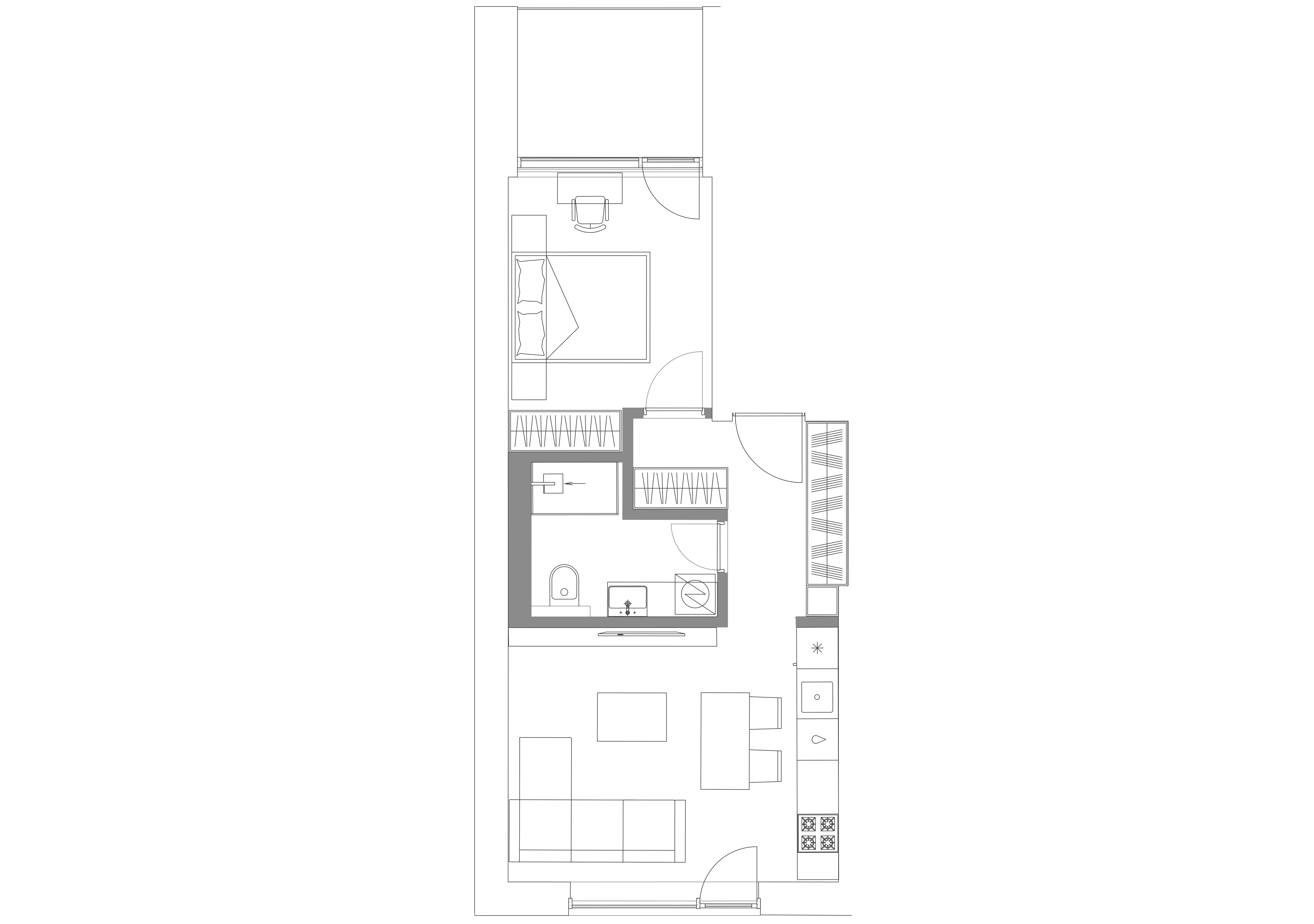
TO FLOOR PLAN

Apartment #7

Floor 3

Rooms 2

Total area 50 m²

Terrace / Balcony 6 m²

Price 180.000 €

Technical specification

Why choose skolas17

Above-ground and underground parking with car lift

Electric car charging stations and bicycle parking

Convenient storage spaces available for purchase

Gated, secure, and well-maintained area

Modern security systems with video surveillance

Energy-efficient and sustainable solutions

Premium finishes and thoughtful architectural design

Convenient location in the heart of Riga

A balance between history and modern urban life

A beautiful shared terrace on the 3rd floor of the building

Similar apartments

Filter by parameters

Status

Status

Available

Reserved

Sold

Status

Rooms

Rooms

1

2

3

4

Rooms

Sort by

Sort by

Price: low to high

Price: high to low

Sort by

Technical specification

CHOOSE YOUR 
SKOLAS 17 APARTMENT

Explore the floor plans and choose the apartment that suits you best. Book a consultation to learn more about the project.

CHOOSE APARTMENT